Если дизайнер не технический специалист, то:
В проекте будут мифические мебель и материалы
Дизайнер заложит материалы, не понимая, есть ли они в продаже. А потом придётся ходить и искать нечто похожее.
Результат не будет соответствовать дизайн-проекту
Из-за неграмотных чертежей будут несостыковки. Бригада не сможет сделать так, как запланировали и что-то придётся переделывать.
Проект не получится реализовать
Проект будет технически нереализуем. Дизайнер нарисует то, что невозможно воплотить в жизнь.
Давайте честно – вам нужен не дизайн, а ремонт. Для этого проект должен быть красивый, технически грамотный и с реальной мебелью в вашем бюджете.
Ольга
Арт-директор
За 20 лет мы сделали 1400 проектов. Вот как мы создаём дизайн-проект:
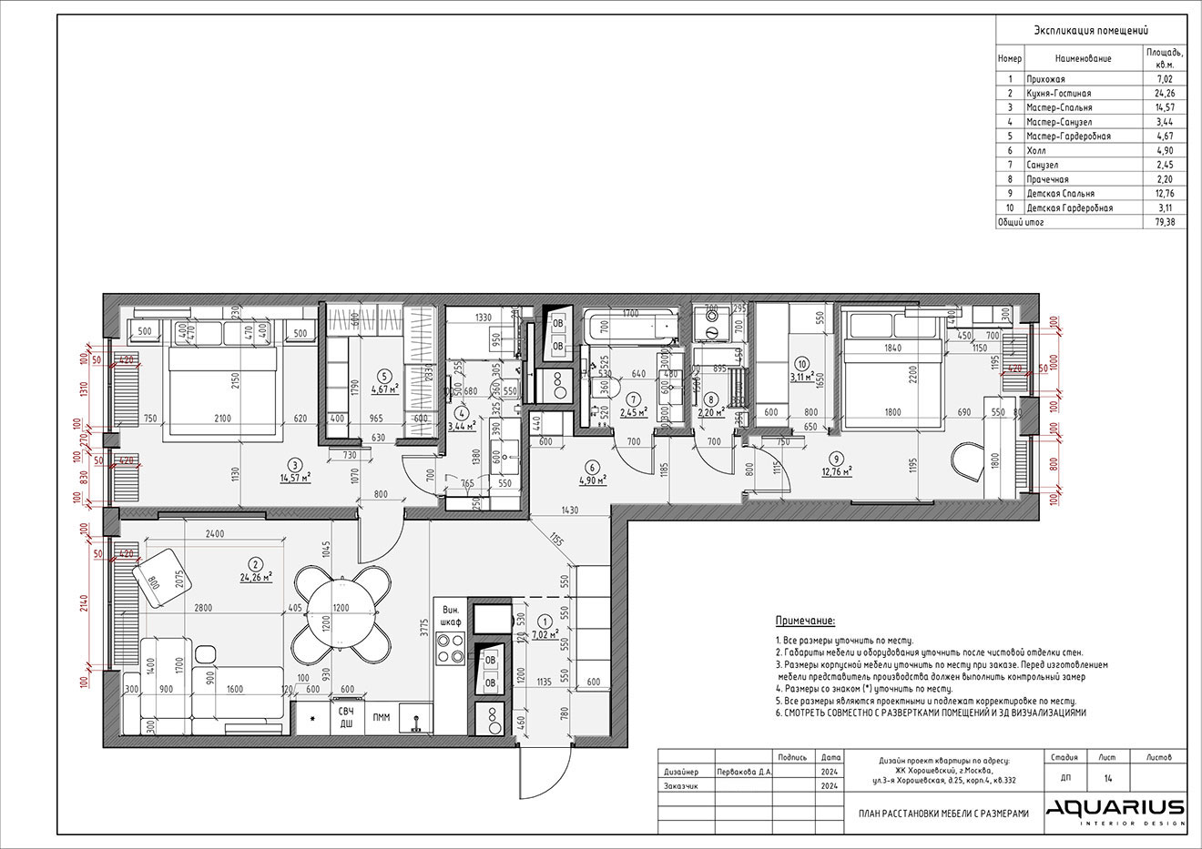
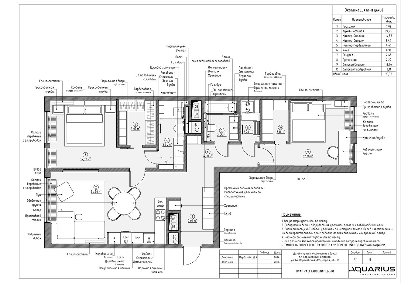
Закладывем реальные мебель и материалы
Все рисуется из реальных моделей столов, смесителей и кроватей, которые есть на московских складах.
Работаем с вашим бюджетом
Если вы определились с бюджетом — адаптируем предложение под него. Если нет — поможем рассчитать стоимость исходя из ваших пожеланий.
Подробнее о бюджете на этой странице
Учитываем ваши пожелания и не делаем шаблонно
Вы заполняете ТЗ, рассказываете сколько человек будет жить, в каком стиле хотите интерьер и о ваших предпочтениях в материалах.
Дизайн-проект – это план будущего ремонта и составлять план должен тот, кто будет воплощать его в жизнь.
Ольга
Арт-директор
Планируем, реализуем, контролируем и отвечаем перед вами за итоговый результат
Ремонтная бригада, сработанная с дизайнером
Наши дизайнеры работают в штате и понимают, как мы строим и с какими материалами работаем.
Ремонт соответствует проекту
Всё, что планируют наши дизайнеры – реализуемо. Иногда в процессе возникают сложности, но их решаем мы, а не вы.
Давайте обсудим ваш проект. Сориентируем по цене и срокам, проведём экскурсию по выполненным объектам или договоримся о встрече в онлайне или офисе.


